百盛聯合集團有限公司 版權所有浙ICP備13019429號-1

百盛總部大樓位于溫州市核心片區機場大道、上江路交匯處,總建筑面積約11萬平方米,以整體高標準設計,融入綠色、科技、智能等理念,建成集低碳環保、高效舒適、富有文化感的智能辦公商業空間。

大樓效果圖

優越區位,奠定商業價值大樓 毗鄰城市主干道機場大道,緊鄰吾悅廣場商業綜合體,周邊匯聚高端住宅區,配套完善,交通便利。

大樓區位圖
穩定客群,帶來持續商機 周邊分布著多個成熟住宅小區,如多弗綠城·翠湖里、浦江社區、國際花園等住宅,提供了穩定的消費人群。同時,周邊學校、酒店、公園、商務辦公樓等公共設施齊全,為商業運營提供了充足的人流量和消費潛力。

大樓周邊配套示意圖
地標建筑,多維展示 L型大氣建筑立面:打造有機統一的城市展示面,創造時尚的都市生活環境。
大樓效果圖
雙入口廣場(主入口+次入口) 進出便利,激發商業活力。自然與商業融合,營造舒適消費場景。



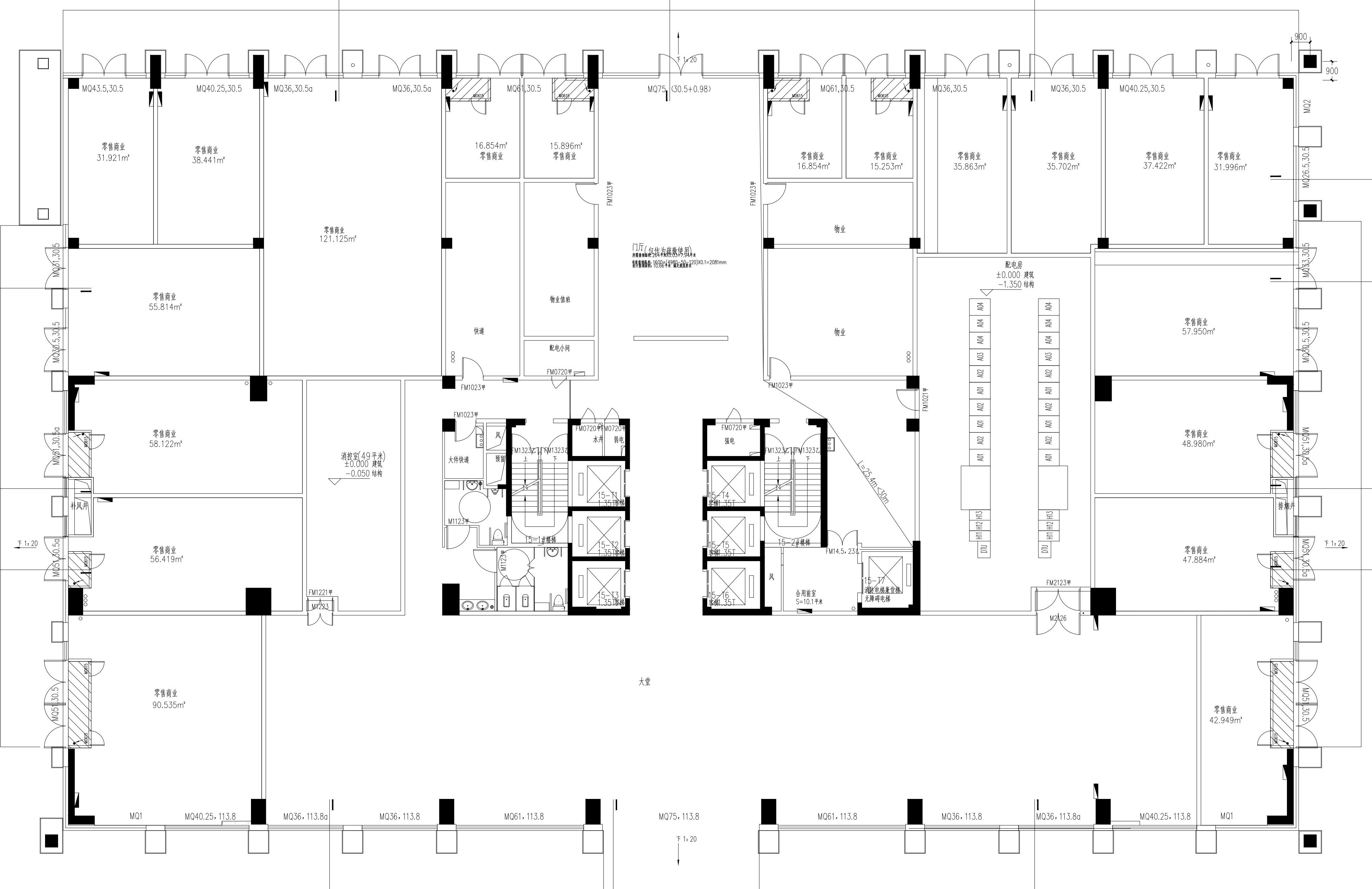
此次開放招商的樓層為一層商鋪。依托百盛總部大樓辦公人群及周邊居民需求,以打造一站式商務生活圈為核心目標,重點引入金融證券、文化創意、連鎖快餐、飲品烘焙、醫療美護及生活配套六大業態。
以下為待租商鋪平面圖:





大樓效果圖
歡迎各商家聯系面談!
樓內入駐合作客戶均由物業公司統一模式化、規范化管理。
1.本公告自發布之日起,如無新公告發出,則長期有效。
2.為了讓意向客戶更全面、直觀地了解出租物業的實際情況,公司將派專人陪同進行現場勘察。
3.本招租公告的最終解釋權歸百盛聯合集團所有。
4.文中效果圖,僅供參考示意。